筑肥線『周船寺』駅より徒歩11分
- 所在地
- 福岡県福岡市西区泉1-8-45
- 取引形態
- 媒介
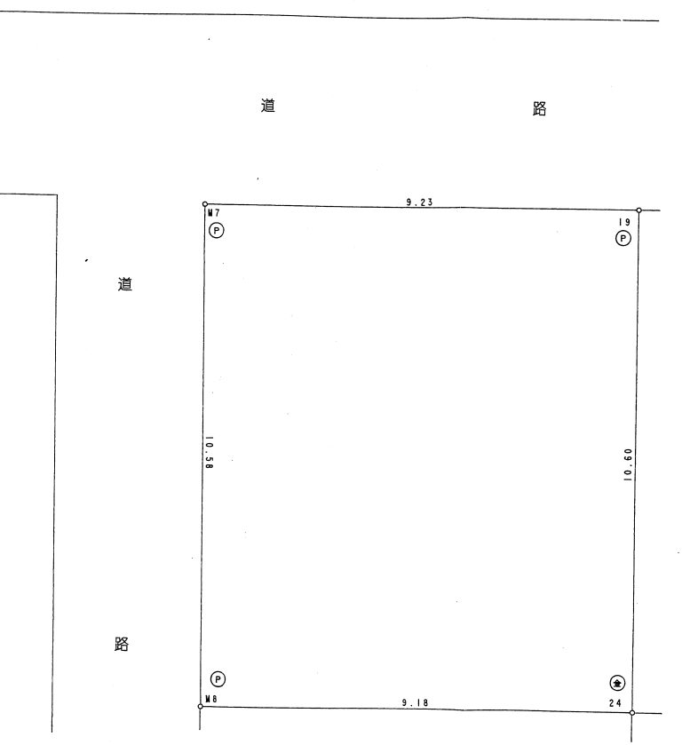
- 土地面積
- 95.47m²
- 建ぺい率
- 40%
- 容積率
- 60%
- 販売区画数
- ―
- 土地権利
- 所有権
- 地目
- 宅地
- 建築条件
- なし
- 地勢
- 平坦
- 都市計画
- 市街化区域
- 用途地域
- 第一種低層住居専用地域
- 法令による制限
- 特別用途地区
- 接道
- 北・西
- 私道負担面積
- 電気
- 九州電力
- 水道
- 公営水道
- ガス
- 個別プロパン
- 排水
- 公共下水
- 現況
- 更地
- 国土法届出
- 備考
- 本物件は、特別用途地区に存しており建ぺい率40% 容積率60%となりますが、建物建築の際に境界から壁面を1m以上離すことで容積率80%まで建築可能です。また北側・西側のセットバック後に角地緩和を利用することで建ぺい率50%とすることが出来ます。





