筑肥線『大入』駅より徒歩7分
売約済み
【糸島市】海の見える家
海目の前の三方角地
糸島エリアで海の見える物件をお探しの方必見!
JRの駅まで徒歩6分 天神駅まで52分 車で約40分以内
クロス張替え・キッチン・トイレ・洗面台新規交換済み・屋根外壁塗り替え・浄化槽設置
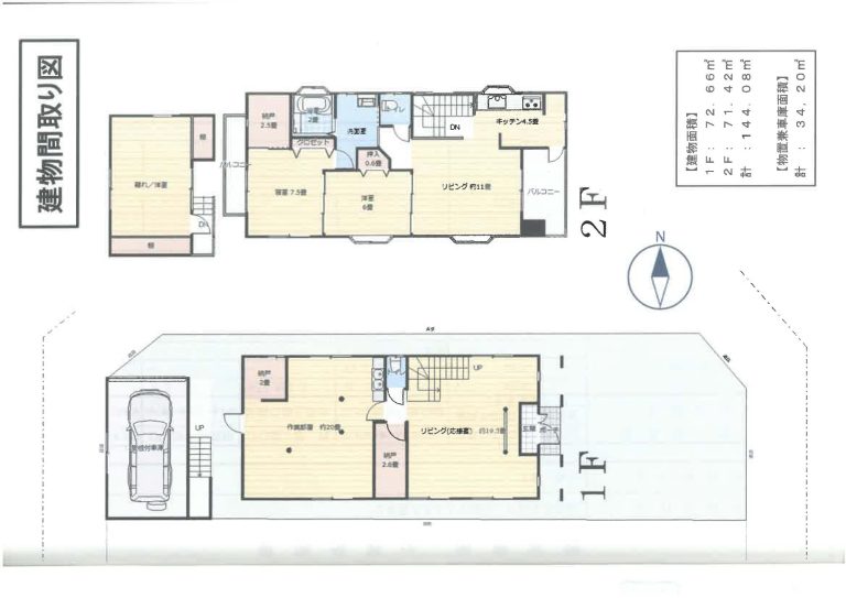
1階部分は店舗・事務所等、様々な用途で利用可能です。
JRの駅まで徒歩6分 天神駅まで52分 車で約40分以内
クロス張替え・キッチン・トイレ・洗面台新規交換済み・屋根外壁塗り替え・浄化槽設置
1階部分は店舗・事務所等、様々な用途で利用可能です。
お電話でのお問合せも承っております。0466-47-9240
- 所在地
- 福岡県糸島市二丈福井
- 取引形態
- 売主
- 間取り
- 3LDK+S+フリースペース
- 築年月
- 2004年5月
- 構造
- 木造スレート葺
- 階建て
- 2階建
- 建物面積
- 144.08m²
- 敷地面積
- 207.49m²
- 建ぺい率
- 60%
- 容積率
- 200%
- 土地権利
- 所有権
- 地目
- 宅地
- 都市計画
- 区分されていない区域
- 用途地域
- 用途指定なし
- 接道
- 東・北・西
- 駐車場
- 4台分(車種による)
- 私道負担面積
- 電気
- 九州電力
- 水道
- 公営
- ガス
- プロパン
- 排水
- 浄化槽
- 現況
- 空家
- 国土法届出
- 引渡し時期
- 相談
- 備考
- 未登記車庫あり






















